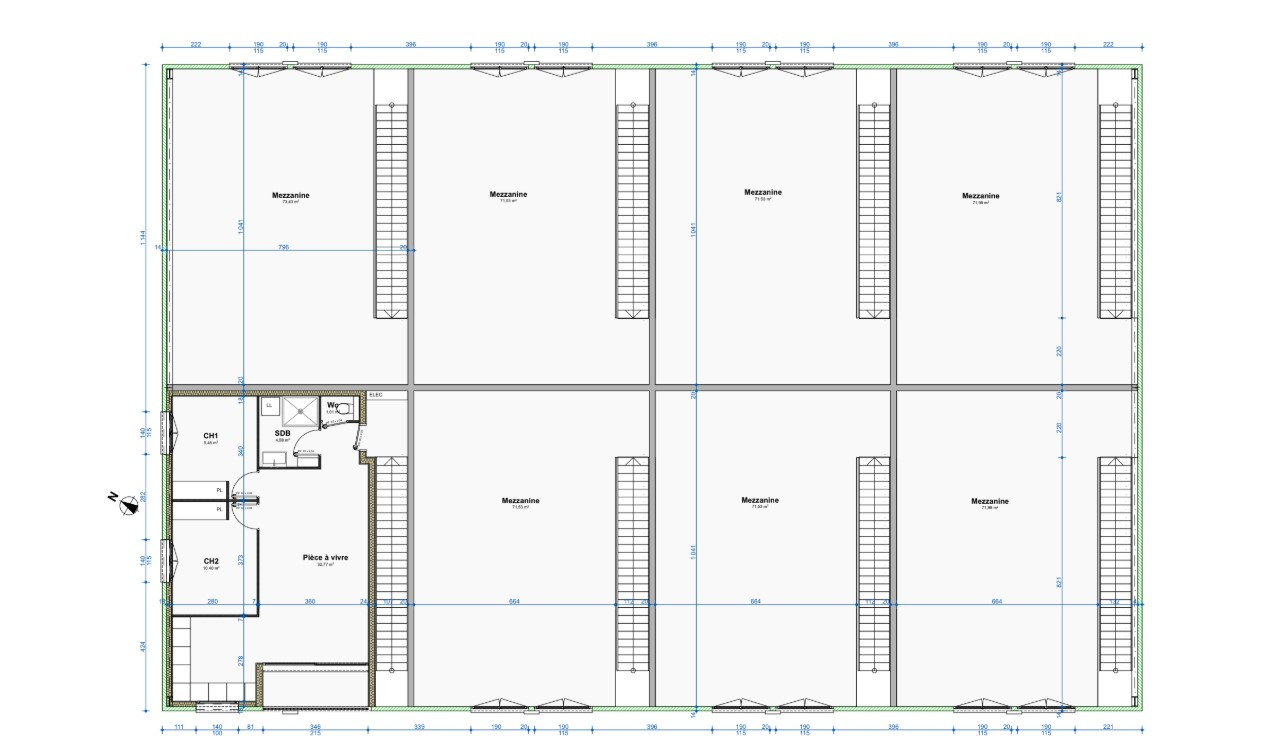
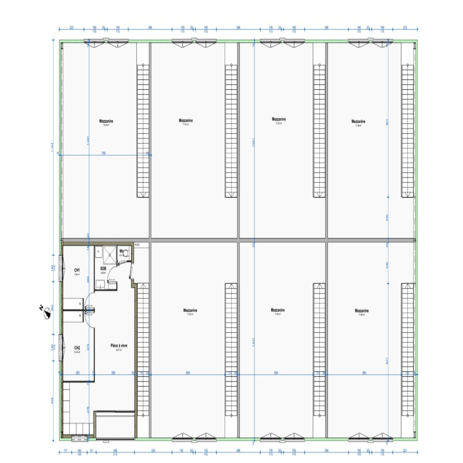
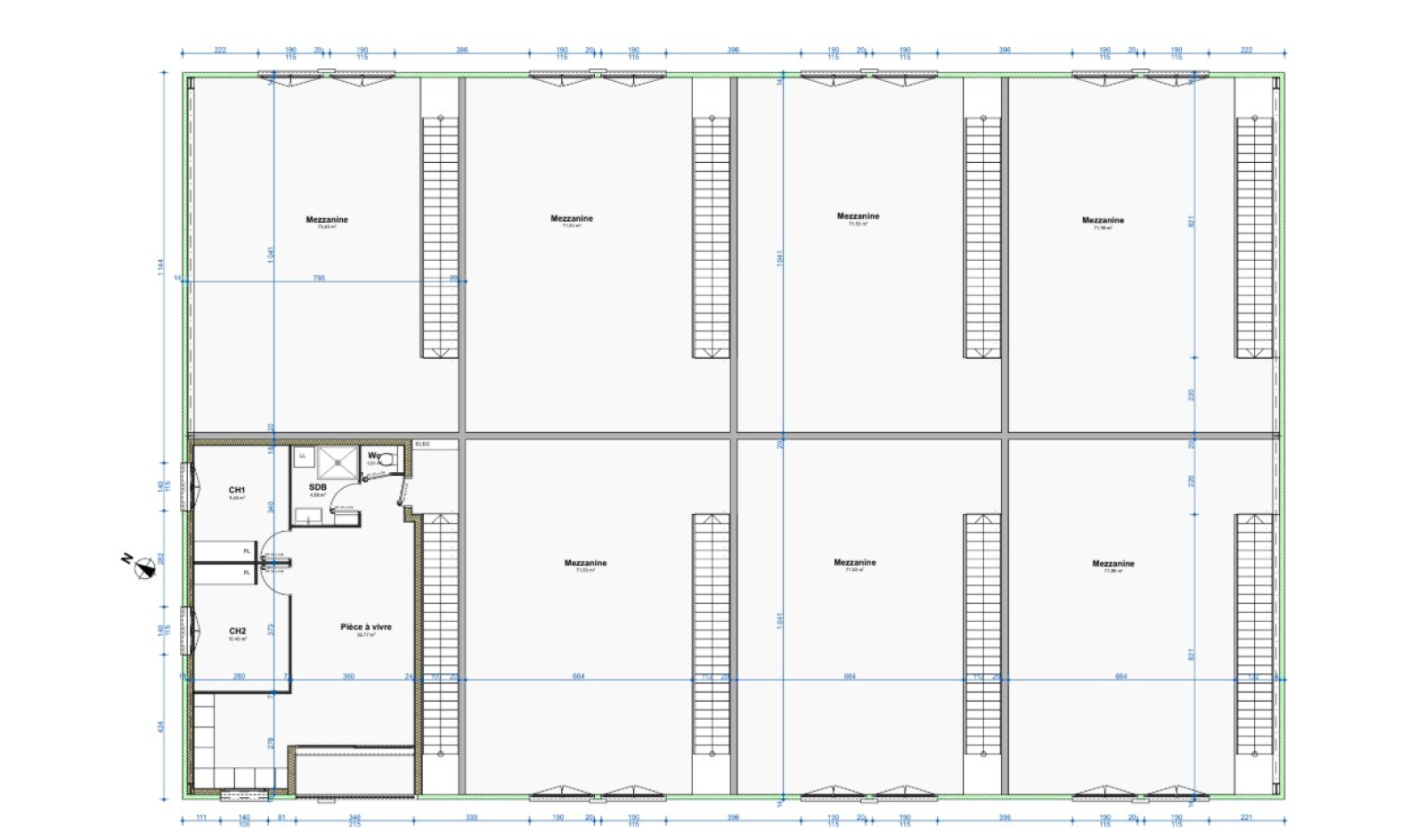
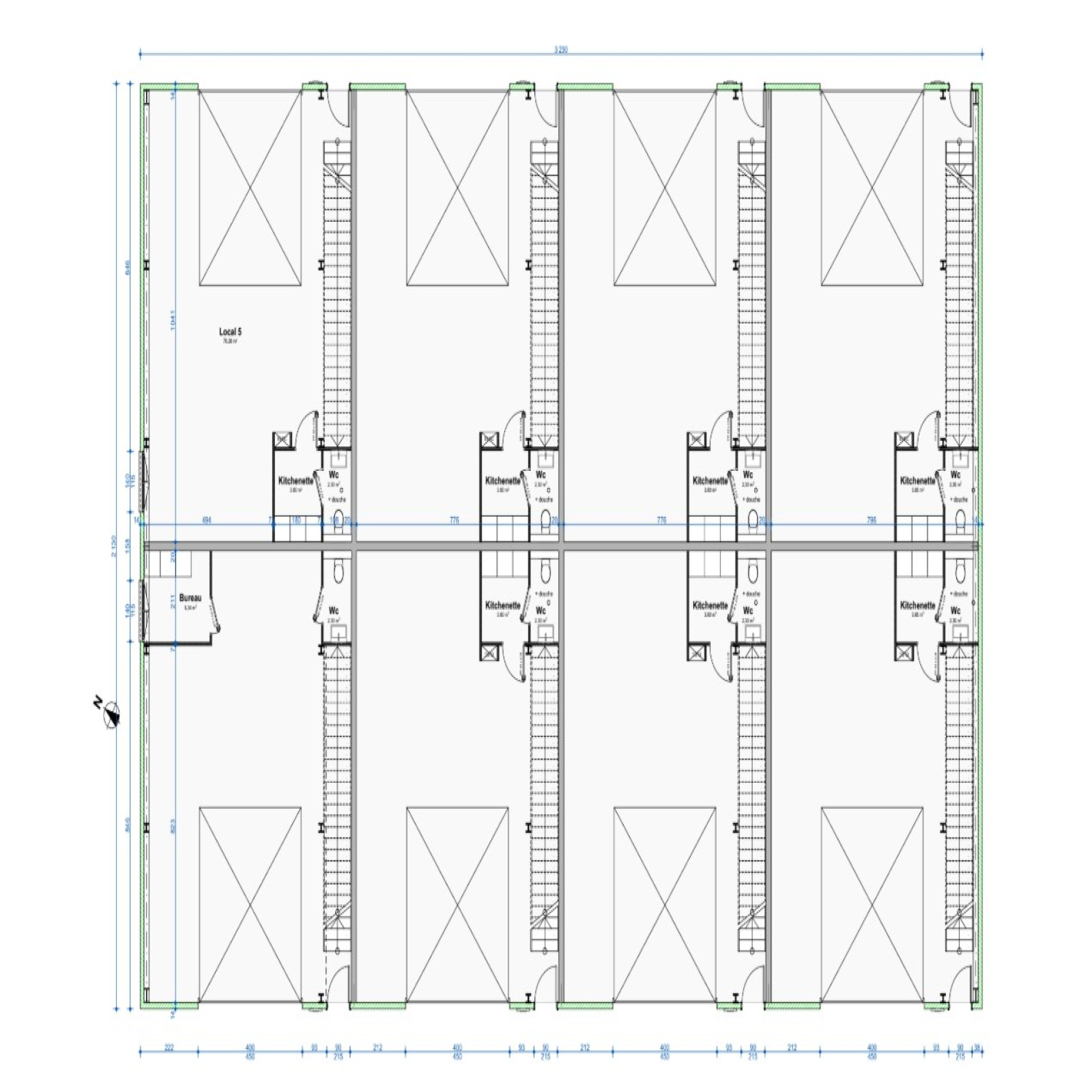
Implanté dans un secteur stratégique et dynamique, à proximité immédiate des accès autoroutiers, cet entrepôt fait partie d'un ensemble professionnel récent de 8 lots, offrant un environnement idéal pour le développement de votre activité. Avec une surface totale de 148m², ce bien séduit par ses volumes généreux et sa grande modularité, parfaitement adaptés à une activité artisanale, logistique, de stockage ou de services. Il se compose d'un rez de chaussée de 76m² avec une hauteur sous plafond exceptionnelle de 7m, permettant le stockage en hauteur ou l'installation d'équipements spécifiques. Une mezzanine de 72m² offrant 3 m de hauteur sous plafond, idéale pour l'aménagement de bureaux ou stockage complémentaire. L'accès est particulièrement fonctionnel grâce à une porte sectionnelle de 4m facilitant les manoeuvres et livraisons, complétée par une entrée piétonne indépendante pour cet entrepôt à vendre sur Contamine sur Arve. Un bien rare sur le secteur combinant accessibilité, et fort potentiel, idéal pour les professionnels ou autres.Retrouvez toutes nos annonces sur notre site http://www.edelweiss-immo.com, l'agence Edelweiss Immobilier vous accueille et vous conseille pour toutes transactions immobilières achats et ventes. Les informations sur les risques auxquels ce bien est exposé sont disponibles sur le site Géorisques: www.georisques.gouv.fr.
Entrepôt 160 m²
Bilan énergétique
Diagnostics énergetiques- Surface 160 m²
- 2 niveau(x)
Financier
Informations financières
Les informations recueillies sur ce formulaire sont enregistrées dans un fichier informatisé par La Boite Immo agissant comme Sous-traitant du traitement pour la gestion de la clientèle/prospects de l'Agence / du Réseau qui reste Responsable du Traitement de vos Données personnelles.
La base légale du traitement repose sur l'intérêt légitime de l'Agence / du Réseau.
Elles sont conservées jusqu'à demande de suppression et sont destinées à l'Agence / au Réseau.
Conformément à la loi « informatique et libertés », vous disposez des droits d’accès, de rectification, d’effacement, d’opposition, de limitation et de portabilité de vos données. Vous pouvez retirer votre consentement à tout moment en contactant directement l’Agence / Le Réseau.
Consultez le site https://cnil.fr/fr pour plus d’informations sur vos droits.
Si vous estimez, après avoir contacté l'Agence / le Réseau, que vos droits « Informatique et Libertés » ne sont pas respectés, vous pouvez adresser une réclamation à la CNIL.
Nous vous informons de l’existence de la liste d'opposition au démarchage téléphonique « Bloctel », sur laquelle vous pouvez vous inscrire ici : https://www.bloctel.gouv.fr
Dans le cadre de la protection des Données personnelles, nous vous invitons à ne pas inscrire de Données sensibles dans le champ de saisie libre.
Ce site est protégé par reCAPTCHA, les Politiques de Confidentialité et les Conditions d'Utilisation de Google s'appliquent.