Page suivante
Page précédente
Viuz-en-Sallaz (74250)

Appartement 3 pièce(s) 2 chambre(s) 64 m²

1
1
1
290 000 €
Réf 3108C

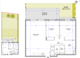
Au centre-village de Viuz en Sallaz,proche de toutes commoditées,  découvrez cet appartement de 3 pièces à vendre en rez-de-jardin d'environ 64m². Composé d'une entrée, belle pièce à vivre avec cuisine ouverte donnant sur une grande terrasse et un jardin d'environ 175m², 2 chambres, une salle de bain, En complément, une cave, garage et parking.FRAIS DE NOTAIRE OFFERT.Nous consulter pour découvrir d'autres biens à vendre au sein de cette résidence.Retrouvez toutes nos annonces sur notre site internet http://www.edelweiss-immo.com, l'agence Edelweiss Immobilier vous accueille et vous conseille pour toutes transactions immobilières achats et ventes.Les informations sur les risques auxquels ce bien est exposé sont disponibles sur le site Géorisques: www.georisques.gouv.fr

Bilan énergétique

Diagnostics énergetiques
A propos de ce bien Caractéristiques de ce bien
  • Surface 64 m²
  • 2 chambre(s)
  • 1 salle(s) de bain
  • construit en 2025
  • cuisine américaine (équipée)
  • Chauffage individuel : chaudière (gaz)
  • 1 garage(s)
  • 1 parking(s)
  • exposition Sud-Est
  • 2 étage(s)
  • vue dégagée
  • cave
  • terrasse
  • quartier Pellet, Plein Centre Ville, Proche Axe Routier, Sevraz
  • accès handicapé

Info copro

Copropriété
  • Copropriété Oui
  • Lot n° B304
  • Statut du syndic Pas de procédure en cours

Financier

Informations financières
Prix de vente 290 000 € Les honoraires d'agence seront intégralement à la charge du vendeur

Simulation

Calcul des mensualités
* Champs obligatoires
L'EDELWEISS IMMOBILIER Agence