Page suivante
Page précédente
Bonneville (74130)

Appartement 2 pièce(s) 1 chambre(s) 50 m²

1
Ascenseur
1
204 900 €
Réf 3080A

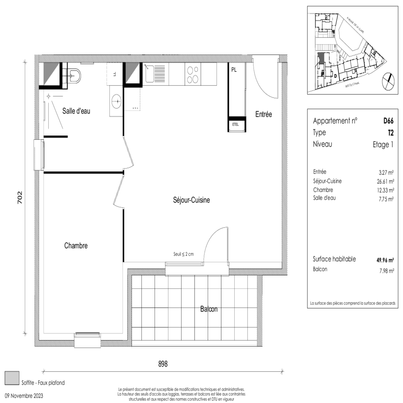
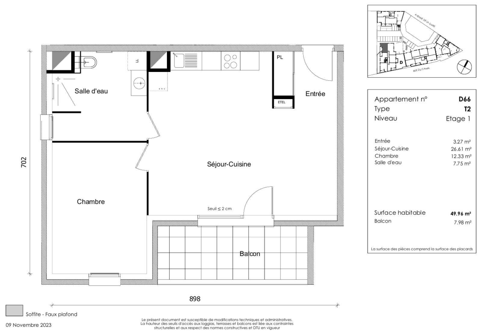
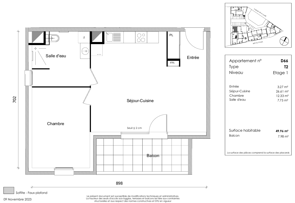
Sur la commune de Bonneville au coeur d'une résidence senior, à découvrir cet appartement 3 pièces à vendre de 49m².L'appartement comprend une belle pièce de vie ouverte sur la cuisine aménagée, 1 chambre, une salle d'eau et un toilette séparé. Idéalement situé au sein d'une résidence sénior intégralement gérée, vous bénéficierez de prestations adaptées aux besoins de chacun, Résidence sécurisée, Cuisine partagée, espace de rencontre, laverie libre-service connectée, salon Home-Cinéma et jardin paysagé afin de tisser des liens durables entre résidents. Un espace praticiens est également disponibles.Appartements aux normes PMR. PRIX SPECIAL INVESTISSEURS EN LLI. Nouveau dispositif, nous contacter pour plus d'informations. Loyers environ 700 euros. Situé à quelques mètres des commerces et de la gare de Bonneville.Retrouvez toutes nos annonces sur notre site http://www.edelweiss-immo.com, l'agence Edelweiss Immobilier vous accueille et vous conseille pour toutes transactions immobilières achats et ventes.Les informations sur les risques auxquels ce bien est exposé sont disponibles sur le site Géorisques: www.georisques.gouv.fr.

Bilan énergétique

Diagnostics énergetiques
A propos de ce bien Caractéristiques de ce bien
  • Surface 50 m²
  • carrez 64,46 m²
  • séjour 30 m²
  • 1 chambre(s)
  • 1 salle(s) d'eau
  • construit en 2025
  • cuisine américaine (équipée)
  • Chauffage collectif : trad_type_chauff_air_eau (pompe à chaleur)
  • 4 étage(s)
  • ascenseur
  • terrasse
  • quartier Axe Passage, Gare, Haut De Bonneville, Impasse, Proche Du Centre Ville
  • accès handicapé

Financier

Informations financières
Prix de vente 204 900 € Les honoraires d'agence seront intégralement à la charge du vendeur

Simulation

Calcul des mensualités
* Champs obligatoires
L'EDELWEISS IMMOBILIER Agence